{{curreentCase.CaseSelected.Header}}

Multifunktionsdach mit Velux Modular Skylights Sheddach-Lichtbändern

Weber Hofer Partner Architekten haben in Zürich die oberste Etage eines ehemaligen Industriegebäudes aus den 1920er-Jahren, die ihnen als Grossraumbüro dient, technisch saniert und nach ihren eigenen Ansprüchen neu ausgebaut. Während einer achtmonatigen Bauphase wurde das bestehende Dach aus den 1960er-Jahren bis auf die Stahlkonstruktion rückgebaut und durch eine moderne, effiziente Konstruktion ersetzt, in die fünf Sheddach-Lichtbänder des Systems VELUX Modular Skylights integriert wurden. Die nach Norden ausgerichteten Flächen bestehen aus Glasmodulen mit leistungsfähiger Dreifachverglasung, die nun das darunterliegende Großraumbüro gleichmäßig mit diffusem Tageslicht versorgen. Die nach Süden ausgerichteten Flächen der Sheddach-Konstruktion sind fast vollflächig mit Photovoltaikelementen belegt. 

Eine grossflächige Akustikverkleidung im Innenraum und eine im Verglasungsbereich unsichtbar montierte Indirektbeleuchtung inszenieren das imposante Dach auch am Abend, wenn der innenliegende Blendschutz das Kunstlicht reflektiert. In feinen Abstufungen bestimmen Weiss-, Hellgrau- und Beigetöne den Raum und treten je nach Lichteinfall unterschiedlich stark in Erscheinung. Entstanden ist eine ausgeglichene und anregende Arbeitsatmosphäre – ein Grossraumbüro in einem alten Industriegebäude, das allen zeitgemäßen Standards entspricht.

Bautafel


{{property.PropertyName}}

{{pValue.PropertyValue}}

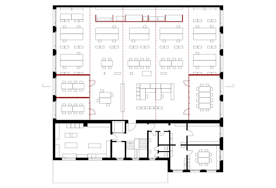
Architekturzeichnungen

Im Projekt verwendete Produkte

5 x Sheddach-Lichtband

Sheddach-Lichtband 25°–90°

Eine Tageslicht-Lösung für Sheddächer

Darstellung der Sheddach-Lichtband-Lösung Mehr erfahren

Anzahl der Module: 100

Spezielle Verglasung: T17

Sheddach-Lichtband 25°–90°

Eine Tageslicht-Lösung für Sheddächer

Darstellung der Sheddach-Lichtband-Lösung Mehr erfahren

Josef Hofer

Weber Hofer Partner AG

Nach eingehender Prüfung haben wir uns entschieden, VELUX Modular Skylights einzusetzen. Gründe waren die technisch durchdachte Konstruktion, einfache Montage und gute Zugänglichkeit der Installationen für die Öffnungsflügel und den Blendschutz. Diese Punkte wurden vollständig erfüllt. Gestalterisch liess sich das System sehr gut in das Sheddach integrieren.

Josef Hofer

Weber Hofer Partner AG

Um eine gute Lösung für Sheddach-Verglasungen zu erhalten, war man bisher meist auf Eigenkonstruktionen angewiesen. Mit dem neuen System VELUX Modular Skylight ist ein Produkt auf den Markt gekommen, welches alle Vorgaben erfüllt und den Bauherren mit gutem Gewissen empfohlen werden kann.

Minimierte Konstruktion, maximale Funktionalität

Infolge der neuen Nutzlasten musste die tragende Stahlkonstruktion verstärkt werden. Die Ausfachung der Stahlkonstruktion erfolgte mit Brettschichtholzträgern und Holzlatten, die auch als Unterkonstruktion für die Befestigung des Unterdachs, der Blechabdeckung und der Photovoltaikelemente dient. Als Unterdach wurde eine diffusionsoffene Kunststoffbahn verwendet, die im Bereich der Photovoltaikelemente direkt als äusserste Dachhaut dient. So konnte ein grosser Anteil der metallenen Dachhaut eingespart werden. 

Zur Belichtung und Belüftung wurden insgesamt 100 VELUX Modular Skylights-Elemente verbaut. Pro Lichtband lassen sich vier Module elektrisch öffnen und tragen so zum neuen Belüftungs- und Klimakonzept bei. Für Tageszeiten, zu denen auch die nach Norden ausgerichteten Glasflächen der direkten Sonneneinstrahlung ausgesetzt sind, wurden innenliegende Sonnenschutzstoren installiert.

Das modulare System-Icon

Das modulare System

Erfahren Sie mehr über Modularität, die wichtigsten Vorteile und unsere Zusammenarbeit mit Foster + Partners.

Entdecken Sie das modulare System
Projektunterstützung für VELUX Modular Skylights-Icon

Wir helfen Ihnen gerne.

Unsere Experten für Tageslicht-Systeme begleiten Sie durch den gesamten Prozess vom Entwurf bis zum Einbau.

Projektunterstützung

Lassen Sie sich inspirieren